Domy o powierzchni użytkowej 110,50 m2, z dużymi tarasami widokowymi, z własnym ogrodem, miejscem postojowym na 2 samochody.
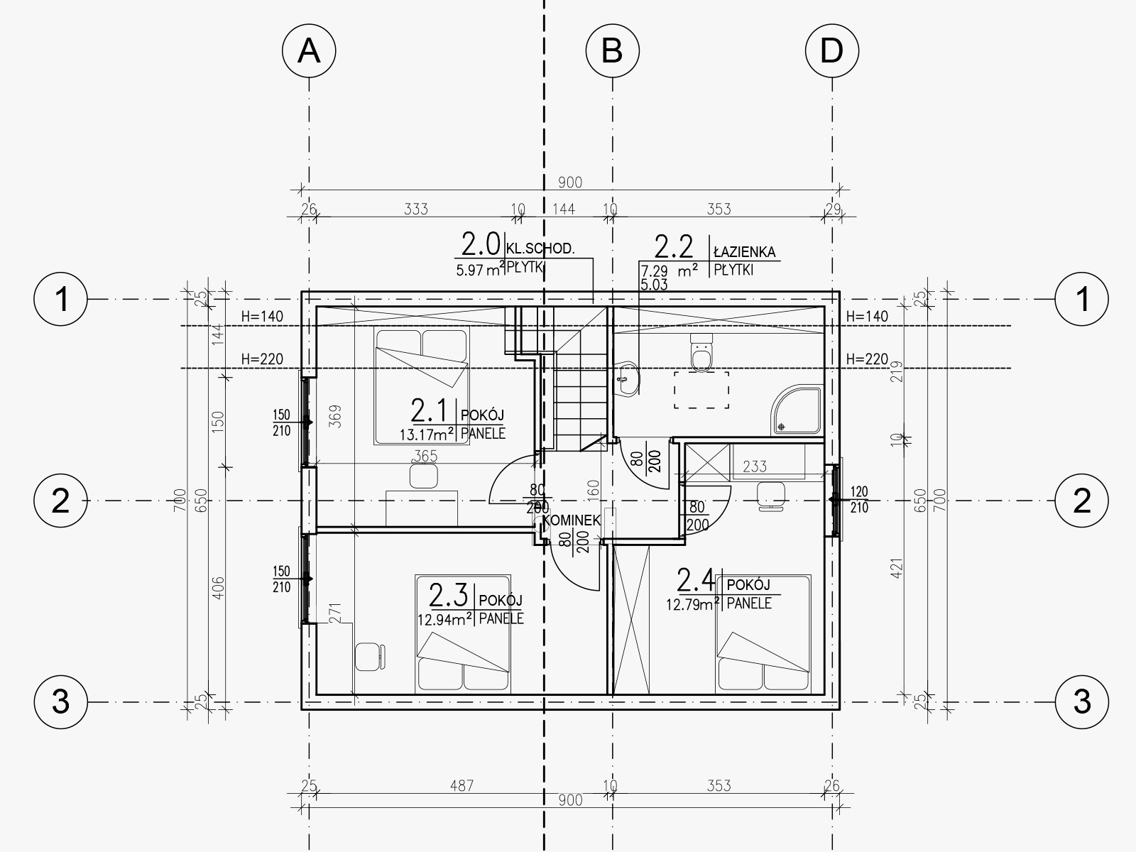
We wnętrzu każdego domu, nowoczesna estetyka przeplata się z tradycyjnymi drewnianymi elementami. Zastosowanie nowoczesnych technologii sprawia, że domy są komfortowe i pełne energii. Domy o metrażu 110 m2, składają się z salonu, jadalni, pięknej jasnej kuchni, dwóch łazienek , trzech sypialni i tarasu.
Każdy z domów został zaprojektowany według starożytnej sztuki aranżacji przestrzeni - Wastu aby przynosiły one szczęście, harmonie i dobrobyt.
Zastosowany prosty układ dachu dwuspadowego jest idealnym nawiązaniem do zabudowy dawnej Sądecczyzny.
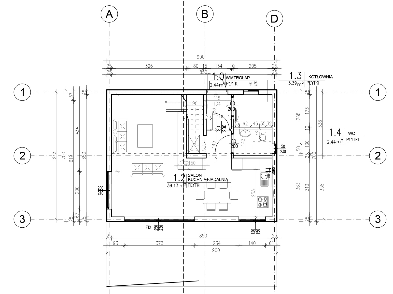
Rezydencje są dwukondygnacyjne. Na parterze zaplanowano wiatrołap, pomieszczenie gospodarcze, łazienkę, kuchnię i jadalnię, z których można wyjść na taras oraz salon z kominkiem.
